5 Jammon Close, Hampton Park, Vic 3976
🏡 Brand-New Luxury Homes – Almost Completed! Looking for a…
Only For VHF $539,250 $719,000
Hampton Park, Melbourne, City of Casey, Victoria, 3976, Australia
🏡 Brand-New Luxury Homes – Almost Completed!
Looking for a central location, low-maintenance lifestyle, or a secure investment? These homes are the perfect fit! Here’s what you’ll love:
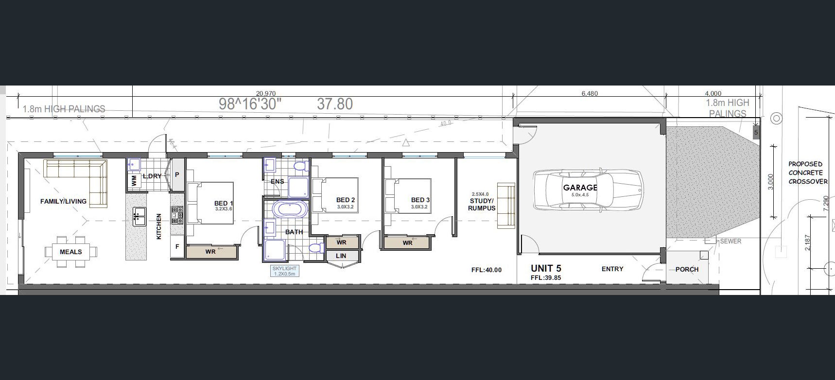
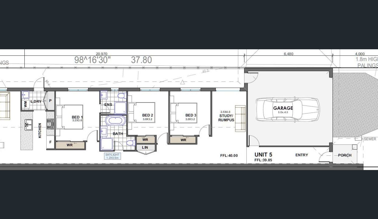
✨ 3 Bedrooms + Study/Home Office
🚿 2 Modern Bathrooms
🌟 Light-Filled Open-Plan Living
🚗 1.5-Car Garage + Remote Access
🍳 Breathtaking Gourmet Kitchen
🏠 High-End Features Throughout
📍 Prime Location
🚆 Easy Transport Access
🔑 Bonus Features
Perfect for Families, Downsizers, or First-Time Buyers! Don’t miss out on these stunning, modern homes!
Property ID :
HNL-11032-property
🏡 Brand-New Luxury Homes – Almost Completed! Looking for a…
Only For VHF $539,250 $719,000
Inclusions: Solar Gas boosted hot water service 6 Star Energy…
$589,950